Neuenbürg - Weinbrennerhaus
Home Büro Leistungen Referenzen Kontakt / Links
Gebäudedokumentation

Neuenbürg - Weinbrennerhaus Neuenbürg, Weinbrennerhaus

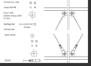
Ausführungsdetail für die eigens entworfenen Archivregale.

Gebäudeuntersuchung
Gebäudeplanung
Gebäudevisualisierung