Heidelberg - Rathaus
Home Büro Leistungen Referenzen Kontakt / Links
Gebäudedokumentation

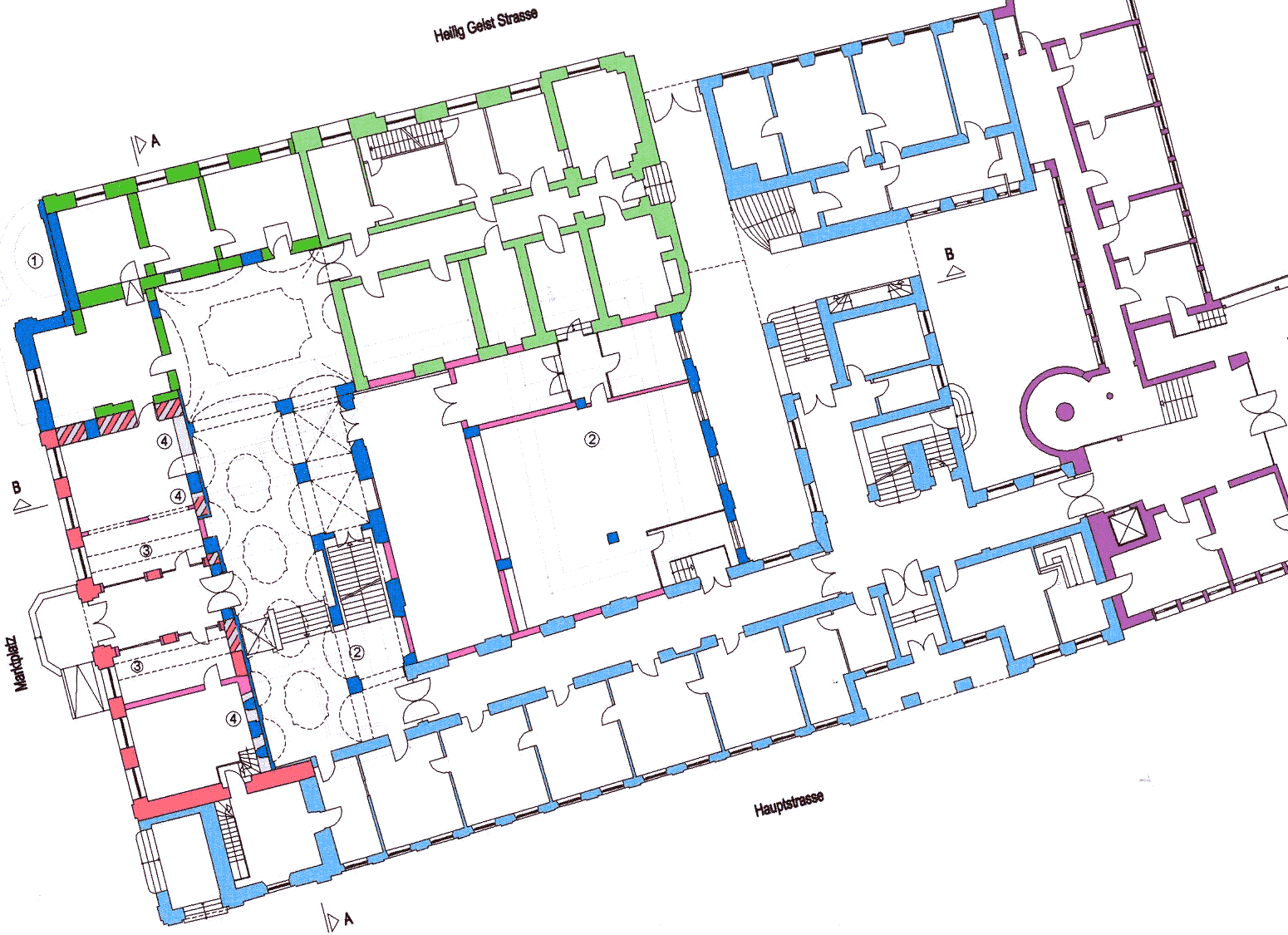
Heidelberg - Rathaus Heidelberg, Rathaus, Erdgeschoss.

Baualtersplan (Ausschnitt).

Gebäudeuntersuchung
Gebäudeplanung
Gebäudevisualisierung